(Symbol 4403306) LOKAL na SPRZEDAŻKoszalin,
Lokal użytkowy - Koszalin

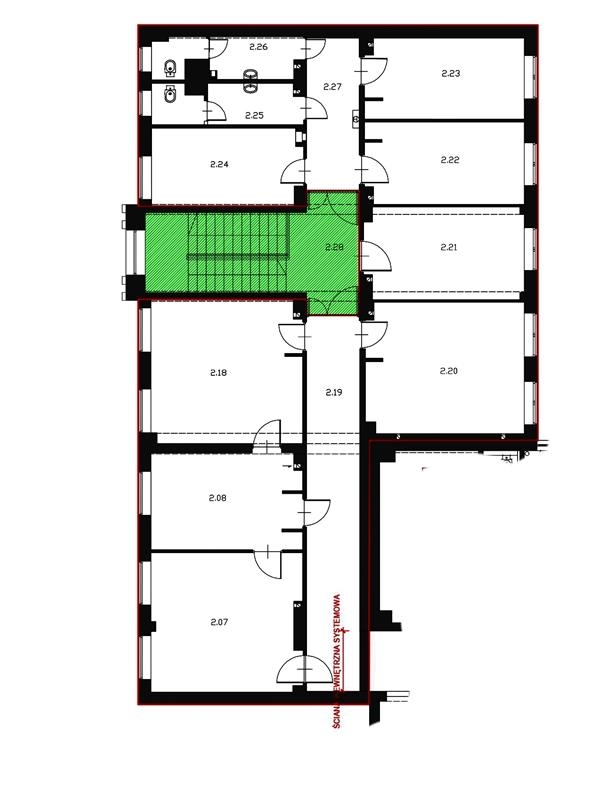
Lokal użytkowy 191,68 m² , I piętro , Koszalin, ul. Armii Krajowej (wejście od ul. Jana z Kolna)

Świetna lokalizacja w ścisłym centrum Koszalina, tuż przy dworcu PKP/PKS, w bezpośrednim sąsiedztwie głównych arterii miasta. Lokal znajduje się na pierwszym piętrze w bocznej nawie budynku (od strony ul. Jana z Kolna), z wejściem klatką schodową bezpośrednio od dużego parkingu.

 Najważniejsze informacje:

  • Powierzchnia: 191,68 m²

  • 8 pomieszczeń biurowo-użytkowych (9,16–23,60 m²)

  • 2 toalety

  • Stan: do remontu/adaptacji

  • Ogrzewanie z sieci miejskiej (MEC) – instalacja do wykonania wewnątrz lokalu

 Idealny pod:

  • biuro (IT, marketing, księgowość, projektowanie)

  • kancelarię lub siedzibę firmy

  • podział na małe mieszkania inwestycyjne

  • adaptację pod mini hostel lub działalność najmu krótkoterminowego

 Atuty lokalizacji:

  • ścisłe centrum, 50 m od dworca PKP/PKS

  • bezpośrednie wejście z ulicy i parking przy wejściu

  • komunikacja miejska, usługi, urzędy i gastronomia w zasięgu 2–3 minut pieszo

  • bardzo dobra ekspozycja i widoczność od strony ul. Jana z Kolna

Dodatkowo:

  • Transakcja zwolniona z podatku VAT

  • Możliwość zakupu podobnych lokali w budynku (różne powierzchnie i układy)

  • Budynek o konstrukcji żelbetowo-murowanej, dawniej siedziba banku – wysoki standard konstrukcyjny

Zapraszamy na prezentację – to lokal z ogromnym potencjałem inwestycyjnym i biznesowym!
Oferta pod opieką licencjonowanego pośrednika (nr lic. 14825)

 

Treść niniejszego ogłoszenia nie stanowi oferty handlowej w rozumieniu Kodeksu Cywilnego. Treść ma charakter informacyjny i zalecamy ich osobistą weryfikację. Kontaktując się z biurem Klient wyraża zgodę na przetwarzanie danych osobowych zgodnie z przepisami ustawy z dnia 29 sierpnia 1997 roku o ochronie danych osobowych / Dz.U.Nr. 133 poz. 883/. Klientowi przysługuje prawo do wglądu do swoich danych osobowych i ich aktualizacji.

Symbol
4403306
Rodzaj nieruchomości
LOKAL
Rodzaj transakcji
SPRZEDAŻ
Status
oferta aktualna
Rodzaj rynku
WTÓRNY
Cena cena w innych walutach
699 000 PLN
Cena za m2
3 647 PLN
opłaty dodatkowe [zł]
2 000 PLN
Kraj
Polska
Województwo
Zachodniopomorskie
Powiat
Koszalin
Gmina
Koszalin
Miejscowość
Koszalin
Ulica
Armii Krajowej
Powierzchnia całkowita
191, 68 m²
Forma własności działki
(Nieznany)
Rodzaj lokalu / przeznaczenie
Lokal użytkowy
Rodzaj budynku
Biurowiec
Standard
Do remontu
Piętro
1
Ilość pięter
1
Umeblowanie
BRAK
Ogrzewanie
C.o. miejskie
Forma własności
Własność
Energia elektryczna
Podłączony gaz
Podłączony wodociąg
Podłączona kanalizacja
Internet
Typ garażu
Brak garażu
Typ parkingu
Ogólnodostępny
 

Doradca odpowiedzialny za ofertę

MAŁGORZATA SZCZERBIŃSKA

Zapytaj o ofertę